목재명칭규격
나무틀상자의 구조 - 옆면

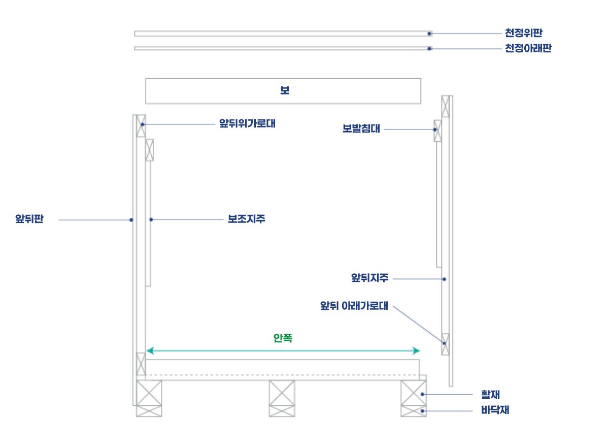
나무틀상자의 구조 - 앞뒷면

목재규격 안내
※ 단, 제품의 특성에 따라 모든 자재의 규격이 달라질 수 있습니다.
| 명칭 |
800KG 미만 |
800~5TON 미만 |
5TON 이상 |
| 천정판 |
7.5T이상 |
7.5T이상 |
7.5T 이상 |
| 보 |
84*50 |
84*60 |
84*60 |
| 밑 고정목 |
84*50 |
84*50 |
84*60 |
| 부하상재 |
84*50 |
84*50 |
84*60 |
| 무부하상재 |
15mm |
15mm |
15mm |
| 활재 |
84*60 |
84*84 |
100*100 |
| 바닥재 |
84*60 |
84*84 |
84*84 |
| 지주 |
84*24 |
84*24 |
84*24 |